Адрес шоурума: Московская область, го Балашиха, КП Купавна Лайф, 193
Меню сайта

60% — аванс 2 689 200 ₽
40% — 1 792 800 ₽ рассрочка на 12 месяцев по 149 400 ₽/мес
Рассрочка предоставляется напрямую от компании Баркас, без процентов и переплат*
Мы сдаём дома, в которые можно заехать на следующий день после передачи ключей. Полная отделка, инженерные сети, сантехника — всё включено в базовую комплектацию. После нашей стройки у вас не будет «второй стройки».
Без скрытых доплат и доделок!

Все материалы — для постоянного проживания, не для дачи. Утепление 150 мм обеспечивает комфортную температуру зимой без перегрева котла. ПВХ двухкамерные стеклопакеты держат тепло и снижают уличный шум.

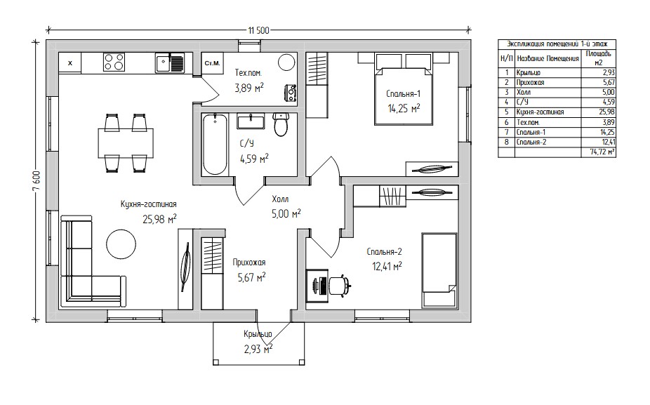
Общая площадь 74,72 м²
Кухня-гостиная почти 26 м² — это не «проходная комната с плитой», а полноценное семейное пространство. Утром — завтрак, вечером — кино, в выходные — гости. Спальни при этом полностью изолированы: никто никому не мешает.
Техпомещение — редкость для домов до 80 м². Здесь живёт котёл, водонагреватель и всё хозяйство. Жилая площадь остаётся жилой.




«Баркас-74,7» — один из самых практичных форматов для тех, кому нужен полноценный дом для ПМЖ без избыточной площади. 74 «квадрата» — это ровно столько, чтобы семье из 3–4 человек было просторно, но не платить лишнего ни за строительство, ни за отопление.
Две изолированные спальни, кухня-гостиная почти 26 м² и отдельное техническое помещение — такое сочетание редко встречается в домах до 80 м². Обычно за техпомещение «жертвуют» метрами санузла или прихожей. Здесь — нет: каждая зона получила нормальную площадь и своё место в планировке.
Для участков в Москве и Московской области этот формат особенно удобен: дом компактный по габаритам, легко размещается на стандартных 6–10 сотках и при этом полностью пригоден для круглогодичного проживания — не дача, а настоящий жилой дом.
Проект можно адаптировать под конкретный участок: скорректировать посадку, сторону входа и внешние акценты, сохранив базовую архитектуру и логику помещений. Стоимость, комплектация и схема рассрочки — фиксированы и прописаны в договоре. Никаких сюрпризов в процессе стройки.
Политика конфиденциальности