Адрес шоурума: Московская область, го Балашиха, КП Купавна Лайф, 193
Меню сайта

60% — аванс 2 956 500 ₽
40% — 1 971 000 ₽ рассрочка на 12 месяцев по 164 250 ₽/мес
Рассрочка предоставляется напрямую от компании Баркас, без процентов и переплат.
Мы не просто строим коробки. Мы сдаём дома, в которые можно сразу заехать и жить. С полной отделкой, внешними и внутренними инженерными системами, а также с бытовой сантехникой.
Никакой стройки после стройки. Вам останется только заехать. Дом будет сдан под ключ.
Без скрытых доплат и доделок!

В проекте предусмотрена технология с нормативным распределением утепления и защитных мембран, обеспечивающая стабильность микроклимата дома. Свайно-винтовой фундамент подобран с учётом типичных грунтов Московской области, а каркасная система гарантирует минимальные деформации и долговечность при сезонных нагрузках. Энергосберегающие ПВХ двухкамерные стеклопакеты и продуманная вентиляция повышают комфорт и снижают теплопотери.

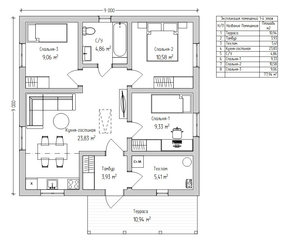
Планировка ориентирована на рациональное использование площади: кухня-гостиная объединяет пространство активной жизни, а спальни расположены так, чтобы обеспечить тишину и приватность. Такое зонирование уменьшает пересечения потоков людей внутри дома и делает повседневное использование более удобным.
Общая площадь 77,94 м²



Дом площадью 77 м² занимает важную нишу между компактными решениями и большими семейными постройками. Он позволяет эффективно распределить зоны отдыха, кухни и приватной жизни без ощущения «пустоты» или «захламлённости». Такая площадь является компромиссом между практичностью и комфортом, особенно для семей из 2–4 человек.
При проектировании важно не только площадь, но и её геометрия: продуманная ориентация комнат по сторонам света обеспечивает естественное освещение в дневные часы, а уменьшенный периметр стен помогает снизить теплопотери зимой. Каркасная технология поддерживает оптимальную жёсткость узлов, а правильное распределение мембран и утеплителей создаёт сбалансированный тепловой контур. Всё это влияет на эксплуатационные расходы и микроклимат внутри дома.
Баркас 77 м² благодаря своей конфигурации также легко адаптируется под индивидуальные пожелания: можно изменить размеры террасы, скорректировать внутренние перегородки или привязать конструкцию к особенностям участка, учитывая рельеф, грунты и инженерные вводы. При грамотной адаптации проект становится не просто архитектурным чертежом, а живым пространством, которое служит своему владельцу долгие годы.
Политика конфиденциальности