Адрес шоурума: Московская область, го Балашиха, КП Купавна Лайф, 193
Меню сайта

60% — аванс 3 132 000 ₽
40% — 2 088 000 ₽ рассрочка на 18 месяцев по 116 000 ₽/мес
Рассрочка предоставляется напрямую от компании Баркас, без процентов и переплат.
Мы не просто строим коробки. Мы сдаём дома, в которые можно сразу заехать и жить. С полной отделкой, внешними и внутренними инженерными системами, а также с бытовой сантехникой.
Никакой стройки после стройки. Вам останется только заехать. Дом будет сдан под ключ.
Без скрытых доплат и доделок!


Этот проект учитывает не только базовый комплект материалов, но и технологическую логику: распределение мембран и утеплителей, правильная вентиляция ограждающих конструкций, обеспечение геометрической стабильности каркаса при изменении влажности и температуры, а также оптимизированные узлы перекрытий и оконные проёмы, что повышает энергоэффективность и долговечность здания.

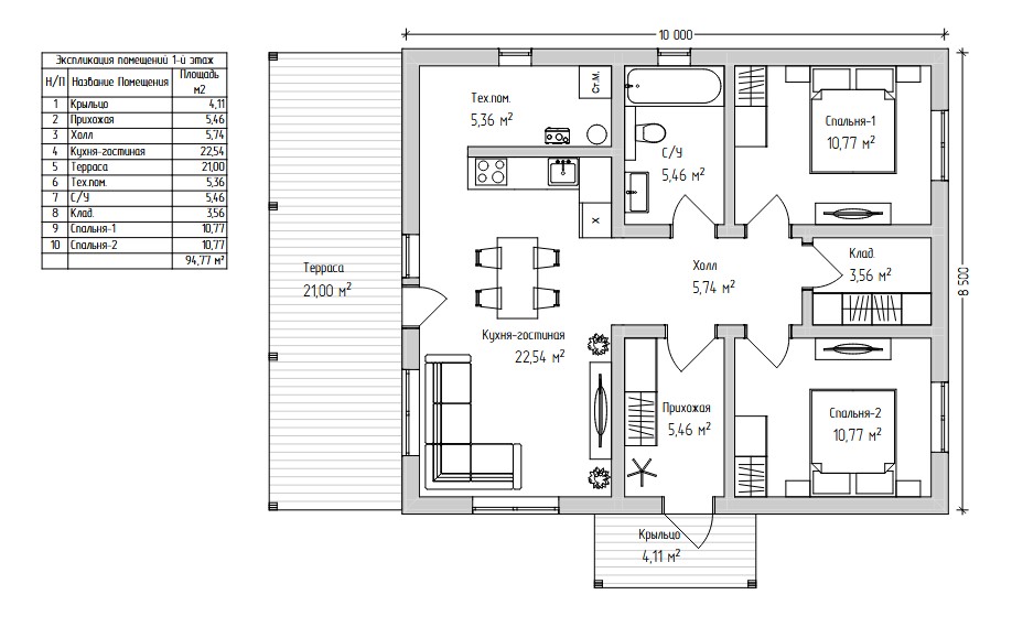
Зонирование в проекте 94 м² направлено на максимальную логичность: дневная часть плавно переходит к террасе, приватные зоны (спальни) удалены от шума кухни и гостиной, а санузлы расположены так, чтобы обеспечить комфорт для всех жильцов. Такая планировка снижает пересечение потоков и создаёт пространство для удобной жизни. В планировку можно вносить изменения в рамках текущей стоимости.
Общая площадь 94,77 м²


Дом площадью 94 м² занимает нишу между компактными решениями и большими коттеджами — это размер, который позволяет совмещать рациональность планировки и ощущение пространства. В отличие от более мелких проектов, где каждый квадрат приходится взвешивать, дом 94 м² даёт возможность выделить зоны для приёма гостей, работы и отдыха без ощущения тесноты. Одноэтажная конфигурация данного проекта исключает необходимость лестничных пролётов, что увеличивает полезную площадь и снижает затраты на обслуживание инженерных систем.
Инженерная логика при проектировании каркасных домов такого формата — это не просто расчёт материалов, но и распределение нагрузок, соблюдение теплового контура и обеспечение приточно-вытяжной вентиляции. Правильное сочетание мембран и утеплителей обеспечивает минимальные теплопотери, а высококачественные ПВХ двухкамерные стеклопакеты способствуют естественной инсоляции и снижению расходов на отопление. Это особенно важно в климате Московской области, где зимний период требует повышенного внимания к энергоэффективности конструкции.
Архитектурная идея террасы — не просто зона отдыха на свежем воздухе, а расширение дневного пространства, которое интегрируется с кухней и гостиной. Такое решение помогает сгладить границу между внутренним и наружным пространством, делая дом более живым и адаптивным к сезонным изменениям. Также проект позволяет модифицировать внутренние перегородки под индивидуальные потребности, добавляя гибкости планировке без нарушения конструктивной целостности.
В результате проект Баркас 94 м² становится универсальным решением для семьи, ценящей комфорт, энергоэффективность и продуманное распределение зон. Это не просто строительный чертёж — это пространство, которое отвечает требованиям современной загородной жизни.
Политика конфиденциальности