Адрес шоурума: Московская область, го Балашиха, КП Купавна Лайф, 193
Меню сайта

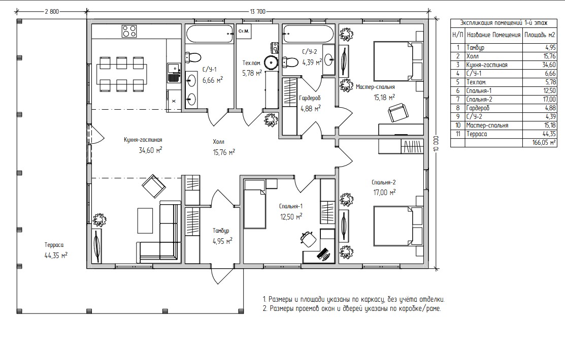
«Баркас-166» — флагманский проект линейки BARKAS: 166 м² в архитектурном стиле барнхаус, спроектированных без единого компромисса между пространством и функциональностью. Дом рассчитан на постоянное круглогодичное проживание семьи из 5–7 человек: три полноценные спальни плюс мастер-спальня с личным санузлом и гардеробной, два санузла, кухня-гостиная 34,60 м² и терраса площадью 44,35 м² — крупнейшая в линейке проектов BARKAS.
Строится под ключ в Москве и Московской области. Цена фиксируется в договоре — без пересмотра в процессе строительства.
«Баркас-166» — единственный проект в линейке, где предусмотрена мастер-спальня 15,18 м² с прямым выходом в личный санузел (С/у-2, 4,39 м²) и гардероб 4,88 м². Это полноценная приватная зона для взрослых, изолированная от остальных спален и общих помещений. Остальные три спальни (12,50 м², 17,00 м² и спальня у общего санузла) расположены в отдельном крыле — дети и гости живут в своей части дома, не пересекаясь с хозяйской зоной.
Терраса 44,35 м² — это отдельная история. На такой площади можно разместить полноценную обеденную зону на 8–10 человек, зону отдыха с диванами и уличный гриль — и всё это без ощущения тесноты. Терраса становится пятым помещением дома в тёплый сезон: май–октябрь в Подмосковье — это полгода жизни на открытом воздухе под защитой кровли.
Стоимость строительства «Баркас-166» под ключ — 8 802 000 рублей. Эта сумма включает все этапы без исключения: свайный фундамент, силовой каркас, тепловой контур с утеплением 150 мм, трёхслойную мембранную защиту, кровлю, окна, двери, наружную и внутреннюю отделку, скрытую электрику и сантехнику. Цена фиксируется в договоре в первый день — и не пересматривается ни при росте цен на материалы, ни по иным причинам.
СТОИМОСТЬ ПОД КЛЮЧ: 8 802 000 руб.60% — аванс 5 281 200 ₽
40% — 3 520 800 ₽ рассрочка на 24 месяца по 146 700 ₽/мес
График и сумма фиксируются в договоре.
Для тех, кто выбирает загородный дом вместо ипотеки на квартиру: BARKAS предлагает беспроцентную рассрочку напрямую от компании — без банков, без кредитной истории, без страховок. Аванс 60% (5 281 200 ₽) при подписании договора, оставшиеся 40% (3 520 800 ₽) равными платежами в течение 24 месяцев — 146 700 ₽ в месяц. Для сравнения: ипотека на аналогичную сумму в среднем обходится в 180 000–220 000 ₽ в месяц с итоговой переплатой 3–5 млн рублей.
Без скрытых доплат и доделок!

Основание и конструкция
При площади 166 м² к фундаменту предъявляются повышенные требования: нагрузка на основание значительно выше, чем у проектов до 100 м², а значит — критична точность погружения свай по уровню и шагу. Мы используем только стальные сваи с антикоррозийным покрытием, расчёт шага и диаметра ведётся исходя из фактических нагрузок проекта — не по «стандартной» схеме, которую применяют ко всем домам одинаково.
Каркас собирается из доски камерной сушки с влажностью не более 18%. При такой площади это особенно важно: в доме 166 м² объём деревянных конструкций значительно больше, чем в компактных проектах, и любая усадка сырой доски проявится заметнее — перекосом стен, щелями в отделке, нарушением геометрии проёмов. Сухая доска эту проблему исключает полностью.
Тепловой контур
Общая площадь наружных ограждающих конструкций «Баркас-166» — одна из самых больших в линейке. Это означает, что тепловые потери через стены и перекрытия пропорционально выше, чем у компактных проектов. Именно поэтому мы не снижаем толщину утепления в крупных домах — наоборот, 150 мм базальтовой ваты во всех наружных элементах (стены, пол, потолок) — это минимальный стандарт, закреплённый в проекте.
Укладка утеплителя выполняется в два слоя с обязательным перекрытием швов: первый слой в 100 мм, второй в 50 мм, смещённый на полширины плиты. Такая технология исключает сквозные стыки между матами — главную причину мостиков холода в каркасных домах. Результат — равномерная температура по всей площади без холодных углов и конденсата на стенах.
Защита от влаги и ветра
При периметре наружных стен «Баркас-166» площадь мембранной защиты составляет несколько сотен квадратных метров. Качество монтажа плёнок на такой площади критично: один неправильно проклеенный стык — и влага начинает проникать в утеплитель, снижая его теплоизоляционные свойства на 30–40% в течение нескольких сезонов.
Пароизоляционная плёнка класса А монтируется изнутри сплошным полотном с нахлёстом не менее 150 мм на стыках и проклейкой специальным двусторонним скотчем. Ветрозащитная плёнка класса Б крепится снаружи каркаса с аналогичным нахлёстом. Гидроизоляционная плёнка класса Д укладывается под наружную обшивку с вентиляционным зазором — он позволяет конструкции «дышать» и отводить случайный конденсат, не позволяя ему задерживаться в слоях пирога.


Отделка и инженерия
Наружная обшивка «Баркас-166» — имитация бруса класса С из хвойной древесины: отборная доска без сучков, смоляных карманов и синевы, с точным профилем шип-паз. Перед монтажом каждая доска обрабатывается антисептическим составом на заводе — это защита от грибка, плесени и биологических поражений на весь срок службы без дополнительной пропитки на объекте. Внутренняя отделка — вагонка того же класса С: ровная, тёплая, с естественной текстурой дерева.
Электрика в «Баркас-166» — скрытая проводка в металлических гофрах, проложенная внутри каркаса до обшивки стен. Для дома площадью 166 м² это особенно важно: трассировка кабелей планируется заранее под каждую зону — спальни, кухню, технические помещения — и согласовывается с планировкой до начала монтажа. В каждом доме BARKAS в обязательном порядке устанавливается реле безопасности — защита от перегрузки и короткого замыкания в сети.
Окна, двери, кровля
При площади 166 м² и большой террасе критично правильно расположить и подобрать окна: они должны обеспечивать достаточное естественное освещение, не создавая при этом критических теплопотерь. Все окна в «Баркас-166» — ПВХ-профиль с двухкамерным стеклопакетом, сопротивление теплопередаче от 0,6 м²·°C/Вт. Это соответствует требованиям СП 50.13330 для климатического района IIБ и исключает конденсат на стёклах при морозах.
Входная металлическая дверь оснащена терморазрывом в коробке: металл без него промерзает насквозь и становится точкой конденсата и теплопотерь — именно поэтому мы принципиально не используем двери без этого элемента вне зависимости от бюджета проекта.
Двускатная кровля «Баркас-166» — металлочерепица с полиуретановым финишным покрытием. Полиуретан не выгорает на солнце и не ржавеет при локальных повреждениях лакокрасочного слоя — в отличие от бюджетного полиэстерового покрытия. Угол ската рассчитан по СП 20.13330 под снеговую нагрузку Подмосковья: снег сходит самостоятельно, не накапливаясь до критических значений.

Распространённая ошибка при выборе крупного проекта — считать, что 166 м² автоматически означают комфорт. На самом деле большая площадь комфортна только тогда, когда она грамотно распределена. В «Баркас-166» каждый квадратный метр имеет конкретное назначение: никаких «ничейных» зон, широких коридоров, которые просто соединяют помещения, или больших спален без встроенных мест хранения.
Принцип планировки — чёткое разделение на четыре функциональных блока: приватный хозяйский (мастер-спальня + гардероб + личный санузел), детско-гостевой (три спальни + общий санузел), общественный (холл + кухня-гостиная) и хозяйственный (тех.помещение + зона обслуживания). Эти блоки существуют независимо друг от друга — вы можете принимать гостей в гостиной, пока дети спят в своей части дома, и при этом никто никому не мешает.
Именно такая архитектурная логика отличает проект, разработанный для жизни, от проекта, разработанного ради метража.

Экспликация помещений (1-й этаж):
Общая площадь 166,05 м²
Входная группа в «Баркас-166» спроектирована с запасом: тамбур 4,95 м² работает как воздушный шлюз — в мороз он не даёт холоду напрямую попасть в жилую часть. Просторный холл 15,76 м² — это не просто коридор, а полноценная буферная зона: здесь можно разместить гардеробный блок, скамью для обуви и стеллажи, не загромождая смежные помещения.

Приватная зона хозяев — мастер-спальня 15,18 м², к которой примыкают личный санузел С/у-2 (4,39 м²) и гардеробная 4,88 м²: отдельная комната хранения вместо встроенных шкафов. Такое решение позволяет полностью убрать шкафы из спальни, сохранив её чистой и просторной. Мастер-зона изолирована от детских спален планировочно — через холл и кухню-гостиную.
Терраса 44,35 м² — один из крупнейших открытых элементов в линейке Баркас. По размеру это полноценная дополнительная комната: обеденная зона, место для шезлонгов, площадка для барбекю — всё умещается без компромиссов. По запросу терраса может быть остеклена и превращена в веранду с остеклением — тогда она становится всесезонным помещением.









«Баркас-166» представлен в семи вариантах окраски фасада: бордо, золотистый тик, натуральный, светло-бежевый, светло-серый, тёмно-синий, тёмный орех. Каждый вариант формирует принципиально разный характер дома — от сдержанного скандинавского (светло-серый, светло-бежевый) до выразительного и современного (тёмно-синий, бордо). На рендерах показан один и тот же дом в разных цветах — это позволяет оценить, как цвет меняет восприятие всего объёма
Важно: окраска фасада не входит в базовую стоимость 8 802 000 ₽ и рассчитывается индивидуально — в зависимости от выбранного цвета, типа лакокрасочного состава и площади обработки. Точный расчёт — у менеджера при оформлении заявки
Барнхаус — архитектурный стиль, вдохновлённый силуэтом американских фермерских амбаров: высокая двускатная кровля с крутым углом ската, вытянутый горизонтальный фасад, минимум декоративных элементов и натуральные материалы отделки. Визуально барнхаус выглядит масштабно и современно при относительно простой конструкции. «Баркас-166» сочетает этот архитектурный силуэт с каркасной технологией строительства — это позволяет получить выразительный дом с хорошими теплотехническими характеристиками и фиксированной ценой.
В базовую стоимость включены все конструктивные и отделочные этапы: свайный фундамент, каркас из сухой строганной доски, трёхслойный тепловой контур (утепление 150 мм базальтовой ватой, пароизоляция, ветрозащита, гидроизоляция), двускатная кровля из металлочерепицы, энергосберегающие ПВХ-окна с двухкамерным стеклопакетом, металлическая входная дверь с терморазрывом, деревянные межкомнатные двери, наружная отделка имитацией бруса класса С, внутренняя отделка вагонкой класса С, скрытая электрика в металлических гофрах с реле безопасности, частичная сантехника. Отдельно рассчитывается: окраска фасада и тонировка внутренней вагонки.
Да, планировка адаптируется под запрос заказчика. В «Баркас-166» наиболее частые запросы на изменение: добавление третьего санузла (за счёт части технического помещения или перераспределения площади), увеличение мастер-спальни, изменение размеров гардеробной, корректировка входной группы под конкретное расположение въезда на участок. Все изменения обсуждаются до подписания договора и фиксируются в проектной документации. Стоимость пересчитывается при существенных изменениях конструктива.
Свайный фундамент — оптимальное решение для большинства участков Московской области, включая суглинки, торфяники, участки с высоким уровнем грунтовых вод и сложным рельефом. Для крупного дома площадью 166 м² расчёт свайного поля выполняется индивидуально — шаг и диаметр свай определяются исходя из фактических нагрузок, а не по типовой схеме. При нестандартных грунтовых условиях мы рекомендуем геологическое исследование участка — по его результатам при необходимости предлагается замена на ленточный или плитный фундамент с пересчётом стоимости.
Рассрочка BARKAS — договор напрямую с компанией: никаких банков, никаких одобрений, никакой проверки кредитной истории, никаких страховок и комиссий. Переплата — ноль. Вы вносите 60% аванса (5 281 200 ₽) при подписании договора, оставшиеся 40% (3 520 800 ₽) выплачиваете равными частями в течение 24 месяцев — по 146 700 ₽ в месяц. Все цифры фиксируются в договоре и не меняются. Для сравнения: ипотека на аналогичную сумму при текущих ставках обходится в 180 000–230 000 ₽ в месяц с переплатой 3–5 млн рублей за весь срок.
Строительство «Баркас-166» под ключ занимает от 45 до 60 рабочих дней с момента начала работ на участке. Это один из самых крупных проектов линейки — соответственно, и сроки выше, чем у компактных домов. Выезд на объект — через 3–4 дня после подписания договора. Конкретный график по этапам: фундамент, каркас, кровля, тепловой контур, отделка — фиксируется в договоре и является обязательством со стороны компании.
Политика конфиденциальности