Адрес шоурума: Московская область, го Балашиха, КП Купавна Лайф, 193
Меню сайта

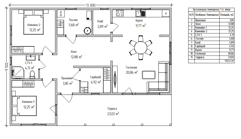
Площадь 112,51 м² позволяет реализовать полноценную трёхкомнатную конфигурацию без ощущения перегруженности пространства. Формат одноэтажного дома исключает лестничные пролёты и «потерянные» метры, благодаря чему вся площадь используется функционально. При таком размере удобно разделяются дневная и приватная зоны — кухня-гостиная остаётся центром дома, а спальни формируют изолированный жилой блок.
СТОИМОСТЬ ПОД КЛЮЧ: 6 120 000 руб.Мы не просто строим коробки. Мы сдаём дома, в которые можно сразу заехать и жить. С полной отделкой, внешними и внутренними инженерными системами, а также с бытовой сантехникой.
Никакой стройки после стройки. Вам останется только заехать. Дом будет сдан под ключ.
Без скрытых доплат и доделок!


Конструктив проекта рассчитан на долговечность и стабильность геометрии. При площади более 110 м² особенно важно правильное распределение нагрузок на фундамент и перекрытия, а также соблюдение технологических зазоров и вентиляционных контуров. Использование сухой строганной доски и мембранной защиты позволяет сохранить характеристики утепления и избежать накопления влаги в каркасных узлах.

Общая площадь 112,51 м²
Планировочная схема ориентирована на повседневный сценарий проживания:
кухня-гостиная выполняет функцию общего пространства,
а спальни размещены так, чтобы обеспечить акустическую и визуальную изоляцию.
Наличие трёх спален позволяет использовать одну из комнат как кабинет или гостевую без ущерба для основной жилой зоны.

Дом площадью около 110–120 м² относится к категории «семейных» форматов, где требуется баланс между пространством и энергоэффективностью. При проектировании такого объёма важную роль играет не только толщина утепления, но и геометрия здания: компактный периметр снижает теплопотери, а правильная ориентация по сторонам света позволяет использовать естественную инсоляцию.
Для одноэтажных домов данного размера особенно важно учитывать шаг несущих элементов, распределение нагрузки на перекрытия и жёсткость конструктивной схемы. Это влияет на устойчивость здания, отсутствие деформаций и долговечность отделочных материалов. При грамотном проектировании каркасная технология обеспечивает быстрый монтаж без потери качества и точности геометрии.
Ещё один аспект — инженерная логика. В домах свыше 100 м² необходимо заранее продумать трассировку вентиляции, расположение стояков, электрических групп и распределительных щитов. Это позволяет минимизировать пересечения коммуникаций и сохранить чистоту внутренних пространств.
Проект 112,51 м² также даёт гибкость в дальнейшем развитии: при необходимости возможно устройство навеса, расширенной террасы или пристройки без изменения основной конструктивной схемы. Такой формат остаётся универсальным решением как для постоянного проживания, так и для загородного дома с круглогодичной эксплуатацией.
Политика конфиденциальности