Адрес шоурума: Московская область, го Балашиха, КП Купавна Лайф, 193
Меню сайта

Мы не просто строим коробки. Мы сдаём дома, в которые можно сразу заехать и жить. С полной отделкой, внешними и внутренними инженерными системами, а также с бытовой сантехникой.
Никакой стройки после стройки. Вам останется только заехать. Дом будет сдан под ключ.
Без скрытых доплат и доделок!



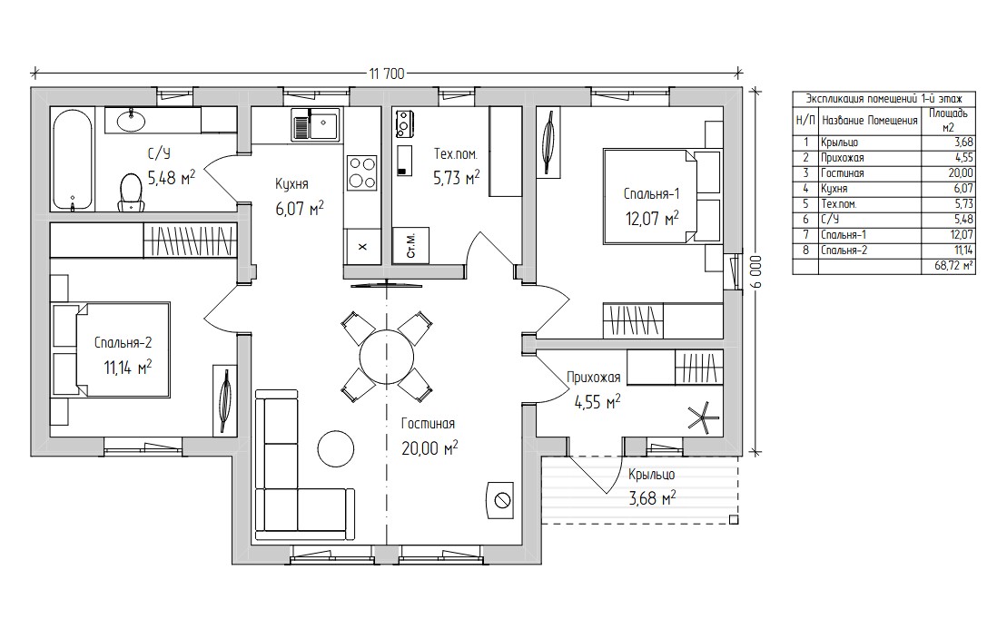
Общая площадь 68,7 м²

Проект «Баркас 68,7 м²» — одноэтажный каркасный дом в стиле барн, рассчитанный на круглогодичное проживание. Планировка сделана «без лишних метров»: две спальни, санузел, отдельное техническое помещение, кухня и гостиная, а также большая терраса 23,03 м² — удобное решение для отдыха и летней зоны без увеличения внутренней площади. Такой формат хорошо подходит семье 2–4 человек и тем, кто хочет функциональный дом с понятным бюджетом и быстрыми сроками реализации.
По конструктиву проект собран на свайном фундаменте и каркасе из сухой строганной доски, с утеплением 150 мм по наружным стенам, 100 мм по внутренним, 150 мм по полу и потолку. Для защиты ограждающих конструкций предусмотрены паро-, ветро- и гидроизоляционные плёнки, установлены энергосберегающие ПВХ-окна с двухкамерными стеклопакетами, кровля — двухскатная из металлочерепицы. Электрика выполняется скрыто в каркасе, сантехника — частично скрытая, с выводами под дальнейшее подключение оборудования.
Стоимость строительства «под ключ» по проекту «Баркас 68,7» указана на странице и может быть рассчитана в выбранной комплектации, включая вариант оплаты в рассрочку. Перед началом работ проект можно адаптировать под участок: развернуть дом по сторонам света, скорректировать входную группу и террасу, уточнить планировку, а также привязать инженерные вводы под септик/скважину и точку подключения электричества. Если вы, планируете строительство в Москве или Московской области, оставьте заявку — подготовим расчёт под ваши условия и задачи.
Политика конфиденциальности